Casa Valea Lupului,Semineu,Beci,Camera tehnica,Magazie,S.u. 145 mp
Descriere casa vila
Casa Premium Valea Lupului - o locuinta gandita pentru confortul unei familii moderne, unde fiecare detaliu conteaza.
Situata intr-o zona linistita din Valea Lupului, la 5 min de Mall Moldova si la cativa pasi de tot ce ai nevoie – Mega Image, Penny Market, Restaurante, Farmacii – casa iti ofera echilibrul perfect intre liniste si acces rapid la oras.
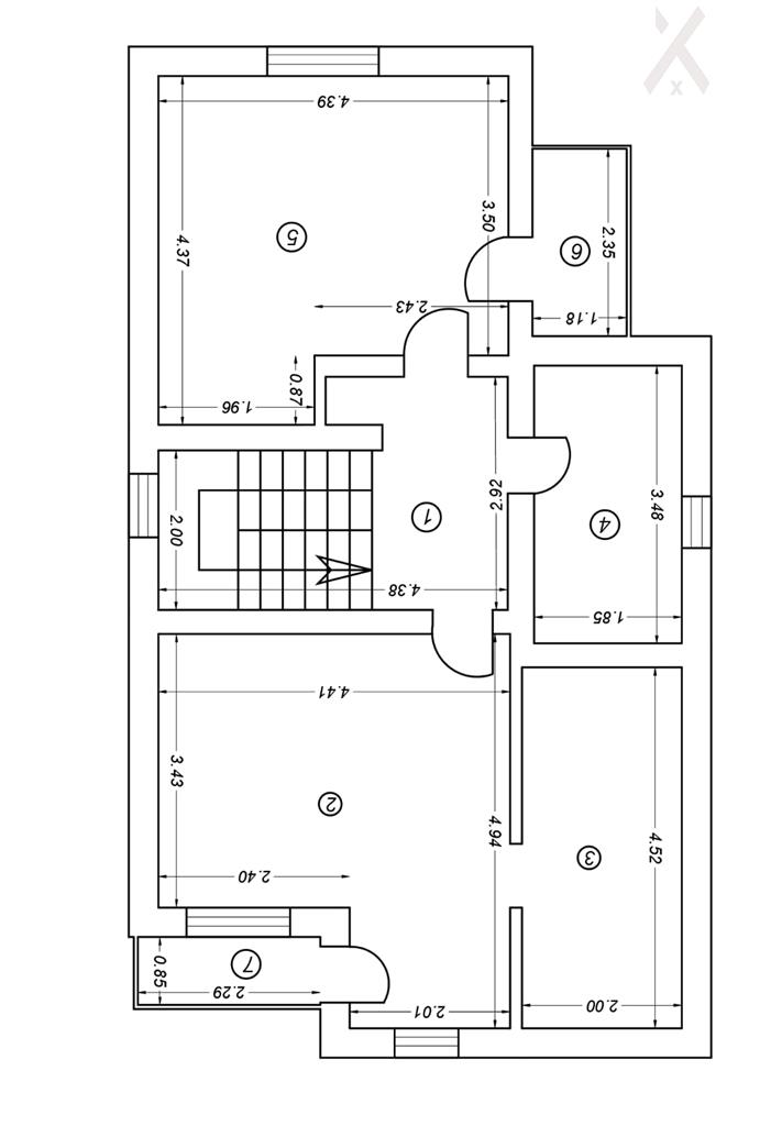
Cu o suprafata utila de 148 mp si un teren de 530 mp, imobilul ofera o compartimentare practica, echilibrata si functionala:
Parter – hol, living cu semineu, bucatarie inchisa cu iesire pe terasa, dormitor, baie, camera tehnica si doua terase acoperite
Etaj – 2 dormitoare, ambele cu iesire pe balcon, dressing, baie cu cada, pod depozitare.
Dotari si beneficii:
-
Structura si izolatie: fundatie cu talpa, hidroizolata si termoizolata cu polistiren extrudat 5 cm; structura pe cadre, pereti din caramida BKS 25 cm; termoizolatie exterioara polistiren grafitat de 10 cm EPS 80; acoperis din tigla metalica tip Lindab; placa la pod izolata cu vata minerala 20 cm.
-
Confort si tehnologie: tamplarie PVC, Salamander 7 camere, 3 garnituri si 3 randuri de sticla; incalzire in pardoseala cu termostate individuale in fiecare camera; centrala termica in condensare; distribuitoare de caldura cu grup de amestec parter si etaj, semineu functional in living.
-
Scari placate cu lemn (fag, stejar sau frasin), parchet special pentru incalzire in pardoseala, gresie si faianta portelanata, usi MDF, glafuri de granit interior/exterior.
-
Exterior si utilitati: terase acoperite, trotuare betonate, pod pentru depozitare cu scara retractabila, porti automatizate, racordata la toate utilitatile (curent, gaz, apa, canalizare, infrastructura pentru cablu tv si internet).
-
Drumuri asfaltate, mijloace de transport in comun, statia de autobuz la 2 minut distanta.
Pozele sunt cu caracter informativ, casa fiind in constructie la acest moment.
Pret: 330.000 euro cu TVA inclus | Comision 0% pentru cumparator!
Se accepta plata cash sau credit ipotecar!
Pentru detalii suplimentare si vizionari, sunati la 0757.330.110.
ID Oferta: AXA477
| Pret Vanzare: | € 330,000 |
|---|---|
| Numar Camere: | 4 |
| Zona: | |
| Suprafata utila: | 145 mp |
| Reper: | |
| Strazi: | Asfaltate, Iluminat stradal, Mijloace de transport in comun |
| Numar Dormitoare: | 3 |
| Tip casa: | Individuala |
| Numar Bai: | 2 |
| Regim Inaltime: | 1 |
| Numar Bucatarii: | 1 |
| An Constructie: | 2026 |
| Suprafata Teren: | 530 mp |
| Acces: | Auto, Pietonal |
| Destinatie: | Locuinta |
| Actualizat la: | 24 Aprilie 2026 |
| Numar de afisari: | 20 |
Caracteristici generale
- Acces auto: Acces auto
- Acces Casa: Pietonal Auto
- Acces internet: Fibra optica
- Acoperis: Lindab
- Bucatarie: Da
- Contorizare: Apometre Contor electric Contor gaz
- Curte: Betonata
- Destinatie: Locuinta
- Ferestre Casa: Term. PVC
- Geam baie: Da
- Incalzire Casa: Incalzire prin pardoseala Centrala Termica
- Izolatii termice: Exterior
- Materiale: Caramida Porotherm Beton Armat
- Pereti: Faianta Lavabil
- Plansee: Beton Armat Mixt
- Podele: Parchet Gresie
- Stadiu Finisare: La rosu
- Strazi: Asfaltate Iluminat stradal Mijloace de transport in comun
- Teren imprejmuit: Teren imprejmuit
- Tip Casa: Individuala
- Tip Curte: Individuala
- Usa intrare: PVC
- Usi: PVC
- Utilitati: Curent Gaz Canalizare Apa
- Zidarie: Caramida











